Skip to content

Hayfield unveils plans for £35m sustainable development in Gotherington

Hayfield, the Solihull based premium housebuilder, has submitted a Reserved Matters Application to Tewkesbury Borough Council for 50 new homes in the Village of Gotherington, Gloucestershire.

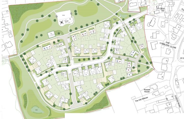
The £35m, 6.27 hectares scheme, just north of Bishops Cleeve, will deliver a range of two, three and five-bedroom EPC A-rated homes and bungalows, which will add aesthetic variety to the neighbourhood, as well as meet continued market demand for single floor properties.

Hayfield will take a tenure-blind approach to delivery, with a total of 20 of the plots designated for affordable housing and the rest for open-market sale.

The development will be fossil-fuel free and achieve the gold standard for energy efficiency. Each home is to include solar PV panels, an air source heat pump, energy-efficient underfloor heating, increased insulation, water efficiency measures and electric vehicle charging point. These sustainability factors are in line with Hayfield’s A-rated, zero-carbon-ready design principles, which already exceed the government’s Future Homes Standard – a level of specification that will be mandatory for housebuilders to meet from 2025.

Andy Morris, managing director of Hayfield, said: “Our vision for this scheme has been to demonstrate how impressive a sustainable development can look and the positive impact it can achieve for local communities.

“That’s why in designing this scheme, not only have we harmonised our signature house designs to be in keeping with the village’s existing architecture, but to also introduce sustainable measures that will enable future residents to significantly lower their carbon footprint and household energy usage.”

The scheme’s design has been inspired by the character of Gotherington’s existing properties, with care taken to ensure the new homes complement the village in an organic, sustainable way. Materials chosen, including stone, reflect those used throughout the existing village. A new access road and a network of footpaths will be created from Ashmead Drive incorporating the existing Public Rights of Ways.

Particular attention has equally been paid to the natural environment. Prioritisation of biodiversity will see new habitats for wildlife incorporated, with native tree planting and an attenuation pond and wetland wildflowers added, while the vast majority of existing trees and hedgerows will also be retained and enhanced. The site will deliver a biodiversity net gain.

Hayfield is currently on site delivering over 300 homes at eight developments across Bedfordshire, Buckinghamshire, Cambridgeshire, Oxfordshire, Wiltshire, and Worcestershire.

Related